Css Cascading Menu by Vista-Buttons.com v5.7
Courtright Ranch
200 Acres Mason County Fredonia, Texas
Click on any picture below to view in a larger size.
Property Description

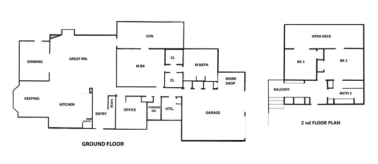
This ranch has a beautiful, Austin Stone, two-story home built in 2003.  As soon as you walk inside your eyes are drawn to the accented homegrown mesquite trim that surrounds the entryway and custom staircase.  The Great room is just that with a vaulted ceiling and beautiful wood burning fireplace. A large archway leads into the dining room highlighted with lots of windows.  An inviting keeping room gives one a cozy space to sit and visit right next to the open, well equipped kitchen.  Lots of cabinet and counter space here, sporting double ovens, an electric cooktop, an appliance garage and a small beverage refrigerator at the bar.  Step into the master bedroom with double glass doors leading into the sunroom.  Enjoy the shower or soaking tub surrounded by glass blocks in the master bath. Across from the master bedroom is a comfortable home office/sitting room. An attractive powder room is between the office and utility room. The utility room has a granite countertop, a deep laundry sink and room for a deep freeze. At The end of the hall you will find an oversized two car garage and small workshop with lots of storage space. Step up the custom staircase where you'll find two guest bedrooms and a roomy open deck right over the sunroom.
Behind the house is a small bunk/storage room.  There is a ranch equipment shed adjacent to the bunkhouse.  And a large garden area high fenced to keep the deer out.  The 200 acres is loaded with Post Oaks and mature Mesquites. 

Property Summary Sheet

Size:  200+/- acres

Location:  8095 RR 2618, Fredonia, Tx, Mason County

Improvements:  3,217 Sq. ft., 3 bed 2 ½ bath home
                        Mesquite trim around entryway and staircase
                        Granite Counters
                        Vaulted Ceiling
                        Double Oven, Electric cook top, appliance garage, small beverage refrigerator
                        Walk-in shower, soaking tub
                        Office/Sitting Room
                        Sun Room
                        Deck
                        Wood burning fireplace
                        Attached 2 car garage
                        Carport
                        Small bunk/storage room
                        Equipment shed
                        High fenced garden area
                        100-year-old cabin (used as deer camp)
RV hookup

Utilities:  Electric on site

Water Wells: 
House Well:  260’ deep, 12 GPM
North Windmill Well:  120’ deep, 5 GPM

Fencing:  Perimeter fenced

School District:  Mason ISD

Property Tax Rate:  1.78 (ag valuation)

Price: $2,700,000
Interactive Map of Property

Back

For more photos and information please contact:

Phone: 512-756-9230
Email: ranches@jimberryranchsales.com

*To view PDF files on your computer, you must have a PDF reader program installed. You can download a free PDF reader here
Home Page | Ranches For Sale | Home Sites | Homes | Waterfront | Commercial | About | Contact Us